売買 新築一戸建て | 寝屋川市春日町 | 萱島駅を中心に寝屋川市で新築一戸建て、マンション、賃貸など不動産をお探しの方、センチュリー21大喜住宅にお任せ下さい。

寝屋川市春日町の不動産物件

【新築一戸建て】 NEW! オススメ 新築 駐車場あり
価格 2,998万円 (税込)
京阪電気鉄道京阪線 寝屋川市駅 徒歩18分
スマホ表示
物件コード:068201-2203
所在地 建物面積
土地面積
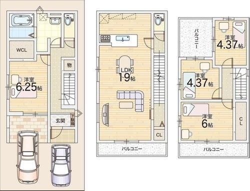
間取り 築年月
大阪府寝屋川市春日町 103.08m2
81.39m2
4LDK 2026/01

物件基本情報

物件種目 新築一戸建て
物件名称 -
所在地 大阪府寝屋川市春日町
交通
京阪電気鉄道京阪線 寝屋川市駅 徒歩18分
階数 3階建
建物構造 木造
建ぺい率/容積率 60% / 200%
駐車場 有 (2台)
学校 西小学校 / 第八中学校
設備・条件
  • ガス:都市ガス
  • 汚水:公共下水
  • 水道:公営水道
  • 雑排水:公共下水
センチュリー21 大喜住宅
0120-88-70-21
携帯電話・PHSもご利用になれます。

画像・写真

周辺地図

地図を表示中...
ストリートビュー未対応エリアです。

物件詳細情報

物件用途 居住用 地目 宅地
間取り詳細 - 都市計画 市街化区域
建物向き 用途地域 第一種住居地域
土地面積基準 公簿 接道 私道 北 幅員4m (接面5.9m)
土地権利 所有権 私道面積 12.15m2
借地条件 - 道路位置指定 -
地代 - 不適合接道 -
建築確認番号 第R07確認建築IPEC70027号 セットバック -
現況 新築 国土法届出 不要
引渡時期 即引き渡し可 取引態様 一般
設備その他 -
特記事項 -
備考 -
公開日 2026/05/23 広告有効期限 2026/06/06
電話でお問い合わせ
センチュリー21 大喜住宅 店舗情報
[所在地] 大阪府寝屋川市萱島桜園町8番12号
[営業時間] 9:00~19:00(水曜日定休)
0120-88-70-21
携帯電話・PHSもご利用になれます。

このページをご覧の方に
おすすめの不動産物件